本次為集團總部辦公樓設計方案,設計面積15000平方,設計師在辦公樓設計中,以自然、技術、建造和人文關懷做為設計主題,將辦公樓中不同的功能區,按照不同的剖面進行布局,來設置這四個不同的空間氛圍主題,設計師希望打造一個適合集團發展的辦公樓設計方案。
▼A樓一層平面

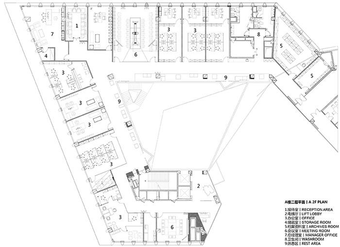
▼A樓二層平面

▼A樓三層平面

▼A樓四層平面

▼A樓五層平面

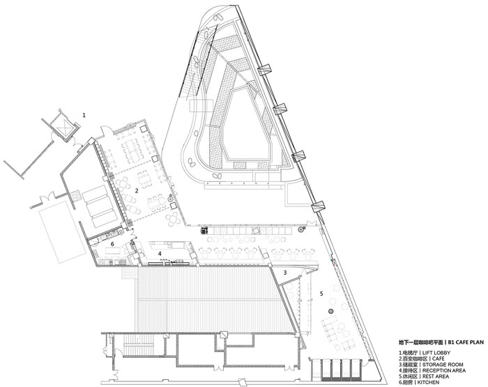
▼地下一層平面

▼地下一層咖啡吧

▼入口大堂


陽光透光窗戶進入室內,將室內與室外連接在一起,這里給人的感覺就是自然、明亮、舒適,預示著企業的未來會越來越好,是一種美好的寓意。
▼一層公共走道

公共走道的區域,用現代感強的深灰色作為主色調,而在會議室相對私密的走道,以木質材質為主,形成了空間的包裹感受,對不同區域空間進行區分。
▼木樓梯



木樓梯是獨立于辦公空間之外的設施,是空間連接區域的靈魂,木樓梯將所有空間連接起來,激活了整個空間。
▼空間頂部


從一樓走到四樓的過程中,會途經每一層辦公區,從而創造出許多交流與溝通的機會。
▼休閑空間

這里以兩種不同的顏色木飾面組合而成,臺階的地面是木地板與水泥自流平的錯位拼接,給員工塑造了一個集閱讀、休憩與活動的場地。
▼辦公區走道


辦公室公共走道以白色為主基調,一側為白色烤漆玻璃,另一側將外立面圖刻印在烤漆玻璃面上,內部打光后線條清晰的展現出來,塑造出未來感。
▼會議室


二層至四層是核心辦公區域,在空間設計中以城市天際線為設計元素,同時工業化的設計,給了企業不一樣的特性。
▼開敞辦公區




在開敞辦公區域設計中,設計將空間所必需的設備管線、橋架等隱藏在居中的吊頂內,吊頂下空間相對較低的位置,被設置為茶歇和交流區。
▼多功能咖啡館


多功能咖啡館,是地下空間重點區域,作為員工休息放松的場所,這里定位為年輕、包容、靈活、互動,在休閑咖啡外還集合沙龍、課堂、派對為一體的集合咖啡館。

這里集合了餐飲、休息、娛樂、文化、健身等功能,圍繞著兩個采光庭院展開,滿足員工8小時辦公時間的基礎需求,和8小時時間之外的生活需求。
▼多功能廳

多功能廳,一面墻設置為白色烤漆玻璃和投影面,另外三個面和中央,通過可旋轉和平移的隔斷設置,可以根據使用行為,劃分出不同的空間狀態。
▼洗手間和公共走道

▼會議室

本次集團總部辦公樓設計方案講解到此技術,設計師在辦公樓設計中,以自然、技術、建造和人文關懷做為設計主題,希望打造一個適合集團發展的辦公樓設計方案。