本次為傳媒辦公室裝修設計方案,設計師在辦公室設計中,以有趣、簡潔、實用為辦公室設計關鍵詞,目的就是希望打造一個時尚、簡潔、實用的辦公空間。
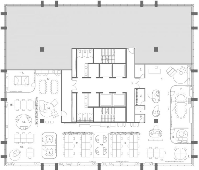
▼傳媒辦公室平面圖

▼傳媒辦公室前臺

▼傳媒辦公室辦公區(qū)

▼傳媒辦公室辦公區(qū)

▼傳媒辦公室辦公區(qū)

▼傳媒辦公室辦公區(qū)

▼傳媒辦公室辦公區(qū)

▼傳媒辦公室綠植

▼傳媒辦公室討論區(qū)

▼傳媒辦公室交流區(qū)

▼傳媒辦公室洽談區(qū)

▼傳媒辦公室會議室

▼傳媒辦公室會議室

▼傳媒辦公室休閑區(qū)

本次傳媒辦公室裝修設計方案講解到此結(jié)束,設計師在辦公室設計中,以有趣、簡潔、實用為辦公室設計關鍵詞,目的就是希望打造一個時尚、簡潔、實用的辦公空間。
辦公室設計案例 |辦公室設計風格 | 辦公室裝修攻略 | 辦公室軟裝設計 | 嵐禾資訊 | 免責聲明 | 服務流程 | 聯(lián)系嵐禾
地址:杭州市上城區(qū)南星橋街道,復廣支二路海運國際大廈A座1205 郵編:310000 業(yè)務咨詢:0571-88091570 傳真:0571-88091570 E-mail: 1467724601@qq.com
辦公室裝修:www.bhtv88.cn