本次為二(2)層辦公室設計方案,辦公室面積為1300㎡,夾層面積為450㎡,天花板高度為3-8.8m,設計師希望打造一個時尚、舒適的辦公場所。
項目名稱:IT公司 ?
項目面積:1300㎡
▼一層平面

▼二層平面

▼辦公入口

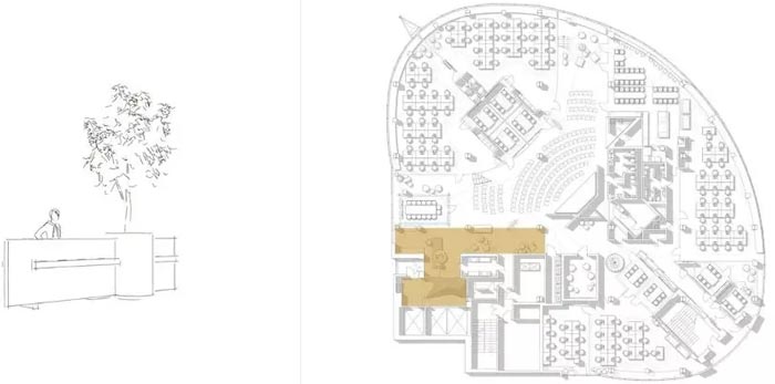
▼前臺平面

▼前臺

▼接待區

▼辦公區

▼辦公區

▼辦公區

▼休息區

▼會議室

▼空中橋梁

▼聚會大廳

▼聚會大廳

▼休息區

▼休息區

▼樓梯

▼休息區

▼閱讀區

▼午休區

▼午休區

▼休閑區

▼衛生間

本次二(2)層辦公室設計方案介紹結束,辦公室面積為1300㎡,夾層面積為450㎡,天花板高度為3-8.8m,設計師希望打造一個時尚、舒適的辦公場所。