本次辦公室設計面積為1500平方,為躍層辦公室設計項目,設計師在設計的時候采用簡約的設計手法,最終形成現代工業風的空間格局,下面為大家講解1500平方躍層辦公室設計方案:

一層辦公空間的設計:設計師在設計的時候考慮的就是功能區域的搭建,整體空間被設計師分為:前臺、等待區、開放辦公區、討論區、茶水間、會議室、打印區、洗手間與景觀陽臺,一樓的自成一體為辦公空間增加了更多可能,最后經過樓梯直上二樓。

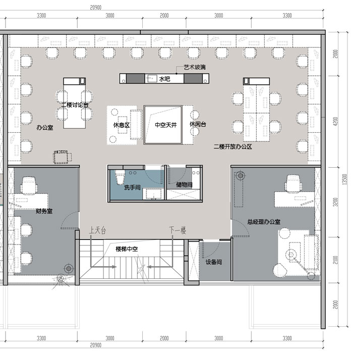
二樓區域的設計:設計師將空間分為:開放辦公區、休息區域、水吧、討論區、財務室、總經理辦公室、儲物間與洗手間,二樓的設計也相對獨立,為企業的發展增加了很大的活性,最后經過樓梯直上三樓。

三樓區域的設計:設計師將功能區域分為廚房、餐廳、品茶聊天區、休息區域與景觀陽臺,三樓的設計主要為員工的日常做準備,一個家文化的辦公文化就此產生,讓員工可以時時刻刻的感受到企業的關心與愛護。

前臺區域的設計:由于建筑本身的動線的緣故,設計師在設計的時候將其安置在進門左側,由于空間的凹陷自然形成一個前臺,設計師對空間進行分割,以柜子隔斷將其他區域與前臺完全隔離,以此前臺空間形成。

一層辦公區域的設計:設計師在設計的時候,將其安置在靠里的空間之中,一方面與消防口接近,利于人員的撤退,另一方面使員工遠離喧鬧,還原寧靜,同時室內的各種設計屏蔽陽光的照射,讓柔光偷偷照射在工作區。

二層辦公區域的設計:設計師在設計的時候,將休息區域與辦公區域設置在一起,同時利用原始的墻壁自然的將兩個空間進行分類,這樣既節約成本,也保留了辦公室原有的狀態,讓一切都是那么自然。

經理辦公室的設計:設計師在設計的時候,將空間分為3個區域,辦公區域、休息區域、接待區域三個區域既滿足了工作需求,同時在閑暇之余可以為總經理提供舒適的辦公環境讀一本書、看一部電影以此來放松心情。

樓梯區域的設計:設計師特意保留在窗戶區域,這可以說一個人工設計的風景區,在困乏的時候展望開闊的室外景色,讓人心中重起波瀾,沖破心中憂郁與困乏,瞬間起到畫龍點睛之效果。
1500平方辦公室軟裝設計方案講解到此完后,設計方案是設計師根據業主的需求設計出來的業主心中所期望的空間,希望通過嵐禾設計的介紹,可以為需要的朋友們提供一絲靈感。