本次為投資公司辦公室裝修設計效果圖,辦公室設計面積2000平方,設計師在辦公室設計中,以區別于傳統辦公空間為目標,設計師希望打造一個高品質的辦公空間,同時富有時尚、藝術氣息的品味辦公空間。
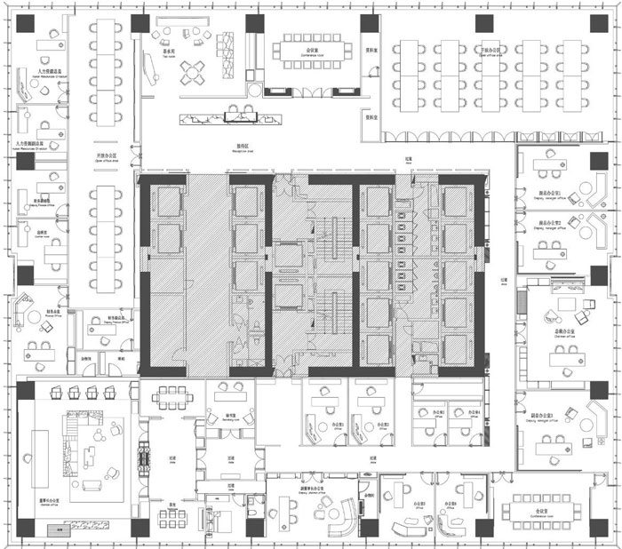
▼辦公室平面圖

▼辦公室前臺

▼辦公室前臺

▼辦公室前臺接待

▼辦公室前臺接待

▼辦公室洽談區

▼辦公室會議室

▼辦公室會議室

▼辦公室會議室

▼辦公室會議室

▼辦公室走廊

▼辦公室走廊書架

▼辦公室過道

▼辦公室茶水間

▼辦公室茶水間細節

▼辦公室交流室

▼辦公室交流室細節

▼董事長辦公室

▼董事長辦公室

本次投資公司辦公室裝修設計效果圖講解到此結束,設計師在辦公室設計中,以區別于傳統辦公空間為目標,設計師希望打造一個高品質的辦公空間,同時富有時尚、藝術氣息的品味辦公空間。